Avec son joli porche, sa fenestration abondante et son revêtement d’aluminium, de pierres et de bois, cette maison à étage a fière allure. Elle mesure 38 pieds 2 pouces de largeur sur 32 pieds de profondeur et possède une surface habitable de 1 468 pieds carrés. Elle dispose également d’un garage de 312 pieds carrés pouvant loger une voiture.
Au rez-de-chaussée, dont les plafonds font 9 pieds de haut, l’espace de vie de 734 pieds carrés comprend un vestibule fermé, une salle d’eau, et une aire ouverte où se trouvent le salon, la salle à manger, éclairée par une fenêtre bandeau, et la cuisine avec un garde-manger et un ilot pouvant servir de table.
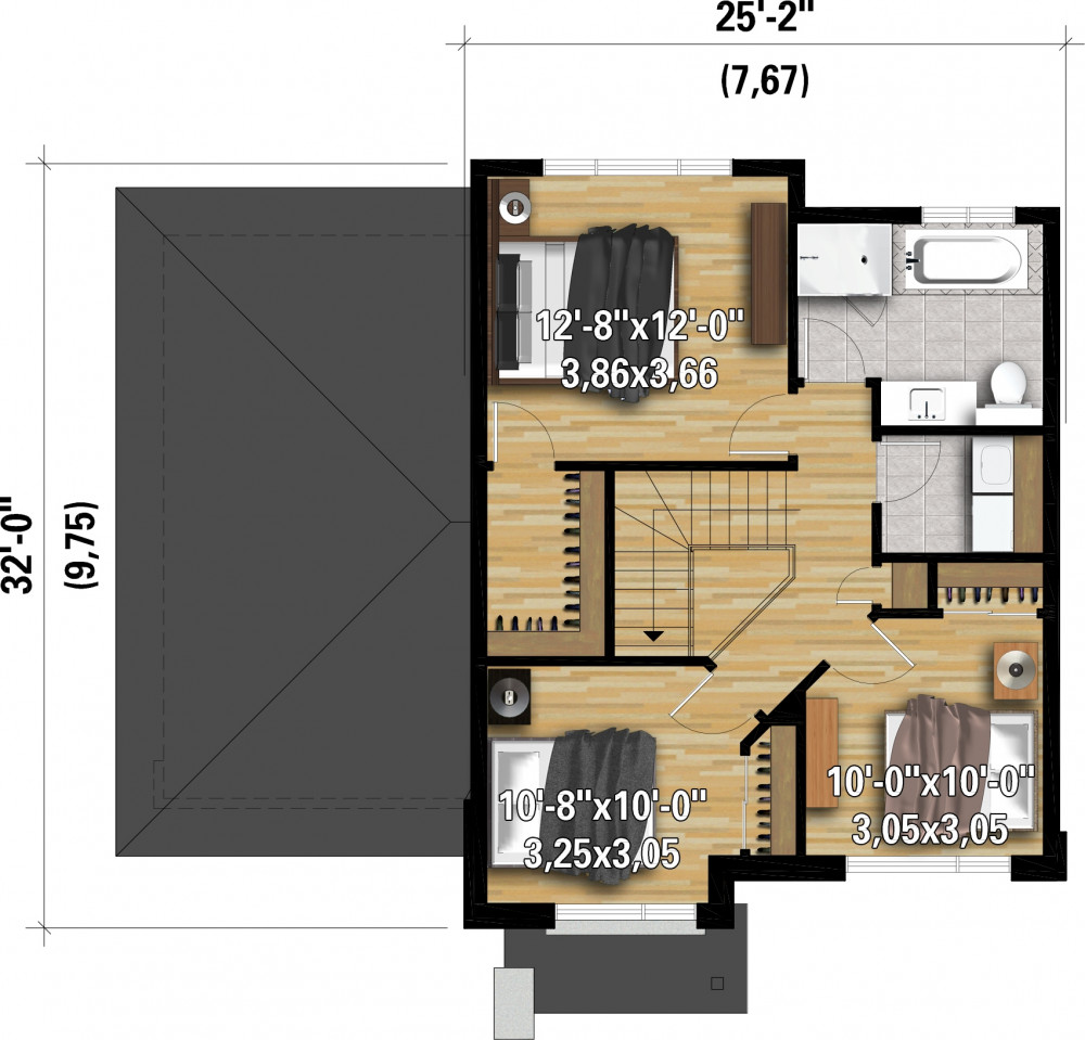
L’étage qui occupe également 734 pieds carrés comporte une salle de lavage, une salle de bains avec une douche séparée et une baignoire sur podium, ainsi que trois chambres, dont une chambre principale qui dispose d’une grande penderie.
Urbain
1








